- 手机:13901034474
- 电子邮箱:xingda@bjxingda.com
- 公司地址: 北京朝阳区机场铺路草场地257号
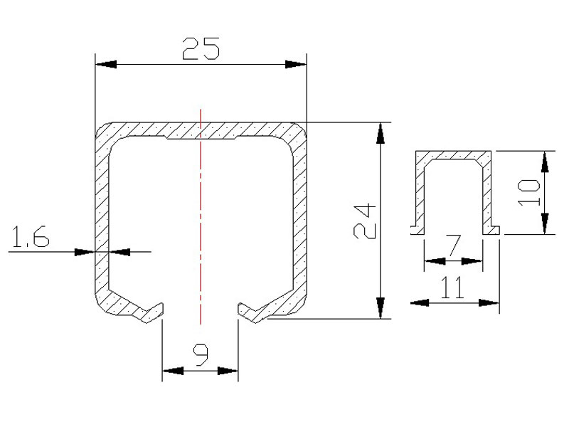
- 规格:25*24

麦奇1Q型滑车车体为钢板冲压形成。滑车车轮套采用超强度尼龙,经过精密加工而成,外套的圆度和精度高。滑车配以四只高性能进口轴承,滑车轮套采用超轻度尼龙。具备了自动减震功能。该产品适用于衣柜、衣橱推拉门等家用或商用场所。一般情况下建议顾客按门重的2.0倍选择滑车的承重量,从而达到滑动和静音的最佳效果,本产品双车承重50公斤。
![]()
.jpg)
![]()

.jpg)
北京朝阳兴达应用技术研究所有限公司是集科、工、贸为一体的高新技术企业,自1990年起自主研制开发的DHG吊门滑轨系列产品,主要应用于室内隔断墙、推拉门、折叠门、窗帘轨等方面。产品荣获国家9项专利,被国家科委、建设部评为国家小康住宅推荐产品及建设部科技成果重点推广项目。并编入88J4(一)、(二)内装修图集及88JX3客房装修建筑结构通用图集。多年来产品得到广大用户的认可和好评。

公司的中型窗帘轨、重型窗帘轨等新产品已推广到很多宾馆大堂、影剧院、会议室等公共场所。
近两年本公司最新研制开发的灵活隔断墙(木制及玻璃),可随心所欲的组成各种不同功能和大小的室内空间。已广泛应用于多功能厅、中西餐厅、会议室等大型公共场所。
本公司拥有强大的科技队伍,可为客户提供从产品设计、制造到施工安装的一条龙服务。
![]()
|
北京朝阳兴达应用技术研究所有限公司
手机:13901034474 |
![]() |
| * 联系人: | 请填写您的真实姓名 |
| * 手机号码: | 请填写您的联系电话 |
| 电子邮件: | |
| * 采购意向描述: | |
| 请填写采购的产品数量和产品描述,方便我们进行统一备货。 | |

- 电动遥控百叶窗帘
- 采用管状电机,电机噪音低、运行平稳,铝合金叶片有宽度为25mm或50mm两种规格,可完成百叶的随意翻转和上下收放。有多种颜色可供选择。通过遥控器可实现横百叶窗帘的单控和群控。

- 麦奇1型八轮点式I型打孔玻璃门夹
- 麦奇1型打孔门夹适于较重型吊装玻璃推拉门,玻璃厚度为10mm/12mm,两个玻璃开孔直径为φ14.双门夹承重120公斤。
相关资讯
| 我要评论: | |
| 内 容: |
(内容最多500个汉字,1000个字符) |
| 验证码: | 看不清?! |












共有-条评论【我要评论】